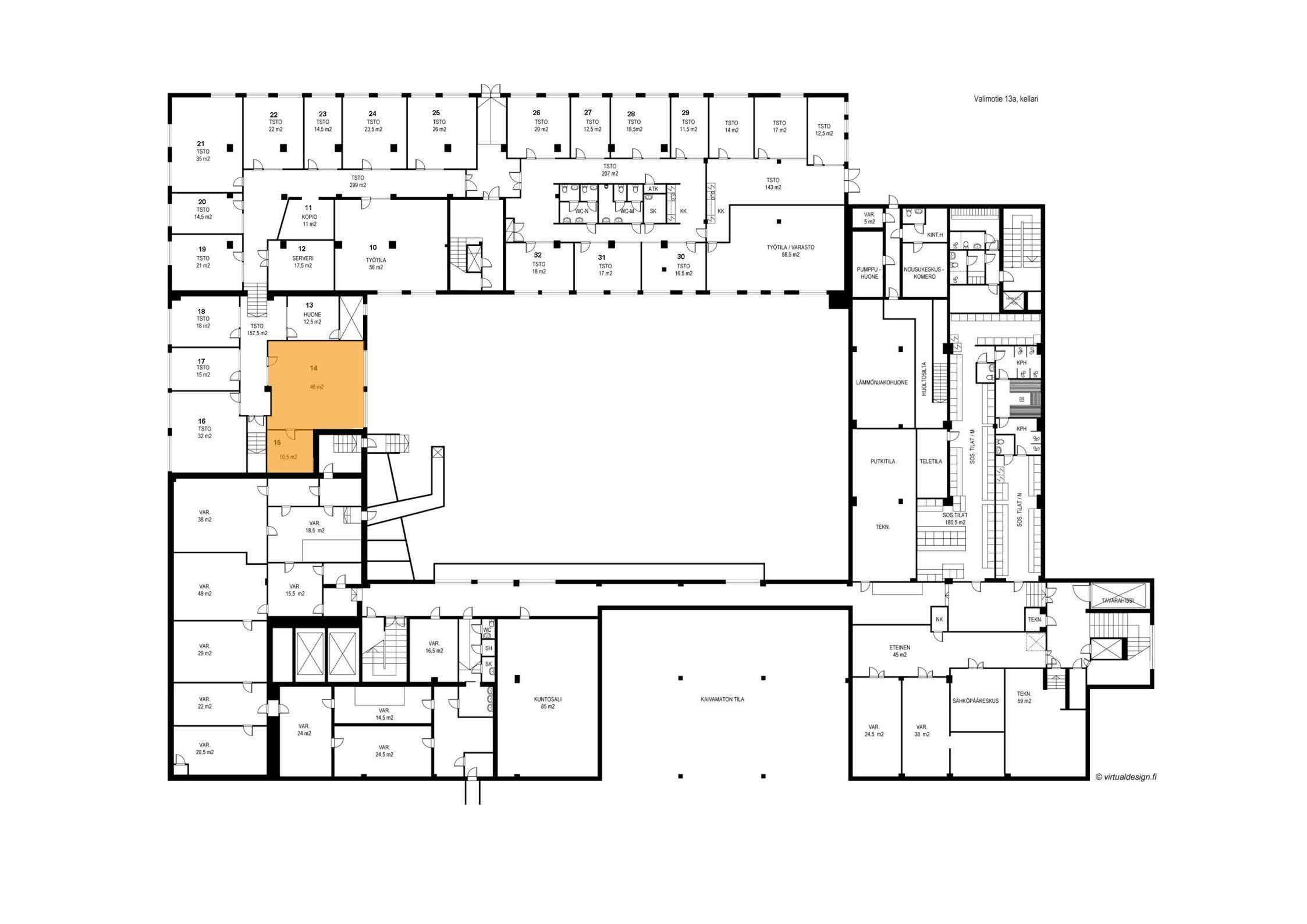
Jäähdytetty noin 56.5 m2 toimistotila Valimotie 13 a:n rakenuksessa. Tila koostuu isommasta toimistohuoneesta sekä noin 10 m2 huoneesta. Tilajakoa on muokattavissa tarpeen mukaan.
Suunnittelemme mahdolliset remontit ja muutostyöt aina asiakaskohtaisesti vuokraneuvottelujen yhteydessä. Suunnitellaan yhdessä sellainen toimistotila, jossa yrityksesi viihtyy!
Valimotie 13a – monipuolinen kiinteistö ja Valimo Centerin sydän
Valimo Centeristä löytyy monipuoliset vuokralaisen palvelut. Kaikkia valimolaisia palvelee Valimotie 13a:ssa sijaitseva aulapalvelu, josta hoituu myös postien vastaanotto, edelleenlähetys sekä pakettipalvelut. Samasta rakennuksesta löydät talon oman – vuokralaisille suunnatun kuntosalin, jonne pääsee kulkuavaimella klo 5-21. Katutasossa runsaan lounaan arkipäivisin tarjoilee Ravintola Factory. Viikoittain vaihtuvan monipuolisen lounaslistan löydät täältä. Mikäli tarvetta on kokoustiloille, löytyy niitä joustavasti vuokrattavana aina 2-20:lle henkilölle.
